Foothill lane
Modernes ranch style living in Mission Canyon, Santa Barbara. CA. Holz, Glas, Stein als dominierende Baumaterialen. Sanierung sämtlicher Innenräume, Türen, Bäder und Küche. Gartenanlage mit Bocce court, Steinmauern und elektrischem Einfahrtstor. Eingewachsenes 4000 qm grosses Grundstück. Ranch/Haus ca. 240qm.

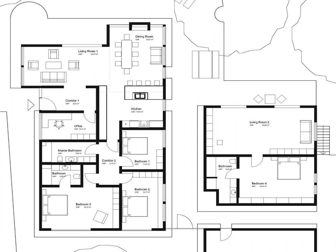
Grundriss

Aussenansicht und Gartenanlage

Die schlichte Form des Designs ist besonders auch nachts schön.

Blick vom Bocce court auf Haus und Garage. Garage hat Platz für drei Autos und workout studio.

Eigentlicher Haupteingang, der bei diesem Haus Design selten genutzt wird, da die vielen Glastüren ein perfektes Innen/Aussenleben ermöglichen.

Lieblingsplatz der Hauseigentümer. Die unter dem alten, traumhaften Olivenbaum mit Freunden und Familie den Esstisch täglich nutzen.

Schlafzimmer im 80qm grossen Gästehaus

Bescheidenes Hauptbad mit begehbarer, offener Dusche. Waschtisch in dunklem Holz auf weiss.

Auch im Schlafzimmer ermöglichen die bodentiefen Glasfronten einen freien Blick in den Garten. Bei der Türe kann das Glasteil, wie ein Fenster, separat geöffnet werden und ist mit einem Fliegengitter versehen.

Im Kinderzimmer wurden die original Schränke und Schubladen im Innen- und Aussenleben erneuert, abgebeizt und anschließend mit einer Eigenkreation von hauchzartem lindgrün gestrichen.

Wohnzimmerbereich

Farbenfrohes Verbinden von neu und alt, modern und antique ist unsere Stärke. Es porträtiert Leidenschaft und schafft Wärme und Wohlfühlen ohne dabei aufdringlich zu wirken.

Offene Miele Küche

Mit dem Boden identisch, bieten die Keramikfliessen an der Küchenwand den idealen Hintergrund zur modernen Kunst.

Wohnzimmer mit Blick zum Eingangsbereich. Dunkle Keramikfliessen als Bodenbelag, die im offnen Küchenbereich (siehe oben) bis auf Deckenhöhe verlegt wurden. Recycelte Holzbretter dienen als Wanddekoration und passen sich dem ranch-style perfekt an, bieten aber gleichzeitig optische Abwechslung zur modernen Kunst der Hausbesitzer.